Кассета ФВК (Ø500-EU4)
1 945 ₽
Типоразмер: Ø500-EU4
Ø200-EU4
Ø250-EU4
Ø315-EU4
Ø355-EU4
Ø400-EU4
Ø100-EU4
Ø125-EU4
Ø160-EU4
Ø500-EU4
Фильтры карманного типа ФВК предназначены для очистки наружного и рециркуляционого воздуха в системах приточной вентиляции и кондиционирования
Подробнее
Наличие и цену уточняйте у наших менеджеров.
Кассета ФВК (Ø500-EU4)
1 945 ₽
Применение
Фильтры карманного типа ФВК предназначены для очистки наружного и рециркуляционого воздуха в системах приточной вентиляции и кондиционирования для помещений различного назначения бытовых, административных и промышленных зданий. Фильтры могут быть установлены на горизонтальных и вертикальных участках воздуховодов. Фильтрующий материал, выполнен карманного типа и имеет класс очистки EU3, EU4, EU5, EU7, EU9.
Конструкция
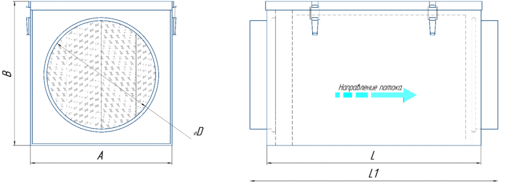
Фильтр ФВП состоит из корпуса, изготовленного из оцинкованной стали и фильтрующей кассеты , снабжен патрубками круглого сечения для присоединения круглых воздуховодов и деталей систем вентиляции. Фильтр изготавливается по присоединительному диаметру на нипельном соединении от Ø100 до Ø500мм.
Пример обозначения : ФВК-200
ФВК – тип фильтра
100 – типоразмер, по присоединительному диаметру, мм
Кассета ФВК-200 EU3
ФВК – тип фильтра
100 – типоразмер, по присоединительному диаметру, мм
EU3 –класс очистки фильтра
100 – типоразмер, по присоединительному диаметру, мм
Кассета ФВК-200 EU3
ФВК – тип фильтра
100 – типоразмер, по присоединительному диаметру, мм
EU3 –класс очистки фильтра
|
Тип фильтра |
d |
B |
H |
C |
L |
|---|---|---|---|---|---|
|
ФВК-100 |
100 |
200 |
204 |
450 |
|
|
ФВК-125 |
125 |
200 |
204 |
450 |
|
|
ФВК-160 |
160 |
200 |
204 |
450 |
|
|
ФВК-200 |
200 |
244 |
247 |
450 |
|
|
ФВК-250 |
250 |
294 |
297 |
500 |
|
|
ФВК-315 |
315 |
343 |
346 |
550 |
|
|
ФВК-355 |
355 |
399 |
402 |
600 |
|
|
ФВК-400 |
400 |
448 |
451 |
650 |
|
|
ФВК-450 |
450 |
490 |
492 |
700 |
|
|
ФВК-500 |
500 |
540 |
542 |
750 |
|
Для покупки выбранного товара в Ростове-на-Дону достаточно оформить заказ одним из предложенных способов:
- Выбрать понравившийся товар и нажать кнопку «Заказать». При оформлении заказа заполнить форму. Вписать информацию в поля: ФИО, телефон и e-mail. Затем вам перезвонит менеджер, чтобы подтвердить ваше согласие на совершение покупки.
- Выбрать понравившийся товар и нажать кнопку «В корзину». Затем перейти в корзину и нажать «Оформить заказ». Далее заполнить форму с контактными данными и отправить заявку. С вами свяжется менеджер для дальнейшего обсуждения.
Оплата
Мы работаем с физическими и юридическими лицами. И предоставляем сразу два варианта оплаты.
- Наличные. Вы подписываете товаросопроводительные документы, расплачиваетесь денежными средствами, получаете товар и чек.
- Безналичный расчет. Принимаем карты Visa и MasterCard. Доступен при курьерской доставке.
Доставка в Астрахани
Можем доставить ваш заказ собственными ресурсами. Либо через варианты доставки:
- Доставка транспортной компанией. Специалист предложит выбрать удобное время доставки и уточнит адрес.
- Самовывоз со склада. Для получения заказа обратитесь к сотруднику в зоне выдачи и назовите номер.
